1 / 40
| 価格 |
3,380万円 | 交通 | 沖縄都市モノレール 「奥武山公園」駅 徒歩14分 バス11分 第二小禄下車 徒歩2分 |
|---|---|---|---|
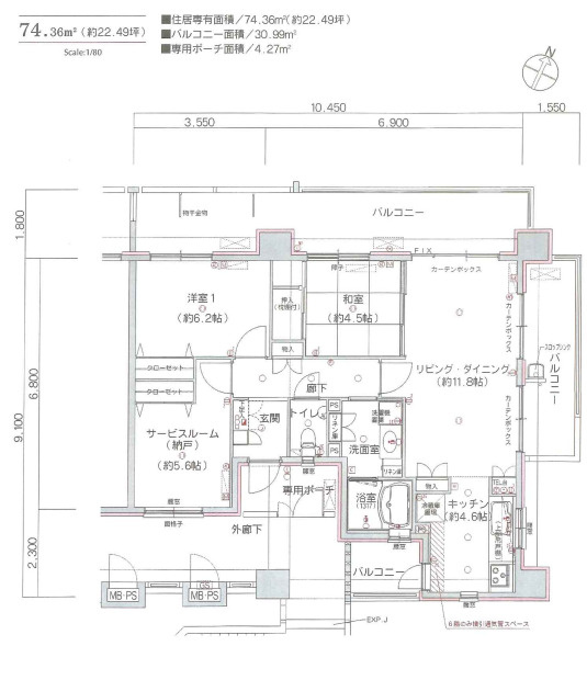
| 間取り | 3LDK | 所在地 | 沖縄県那覇市小禄5丁目 2-1 |
| 専有面積 | 74.36㎡ | 築年月(築年数) | 2006年 2月 (築19年) |

【外観】